ROB BRILL RESIDENCE AND STUDIO:

Information
Project Specs
Project Text

Plans
site
third-floor
second-floor
ground-floor

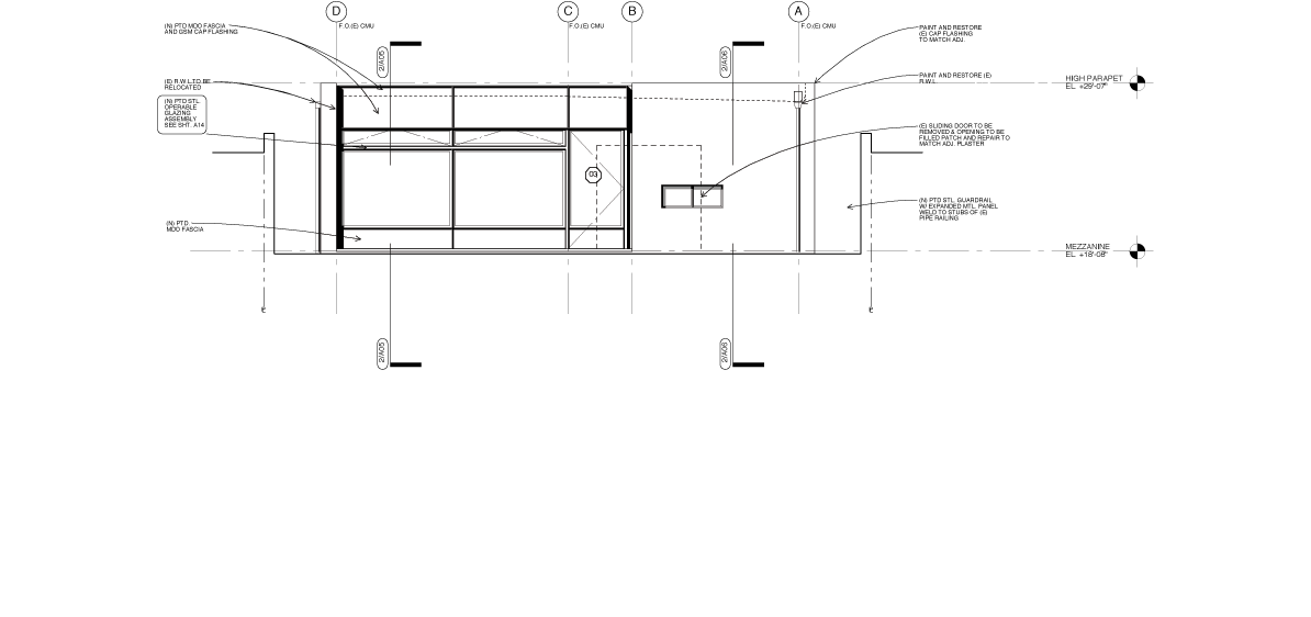
Elevations
east
south
north
west

Sections
longitudinal
transverse

Images

















































J,P:A